cena Mieszkania

1 174 300 PLN

cena za metr kw.

24 000 PLN

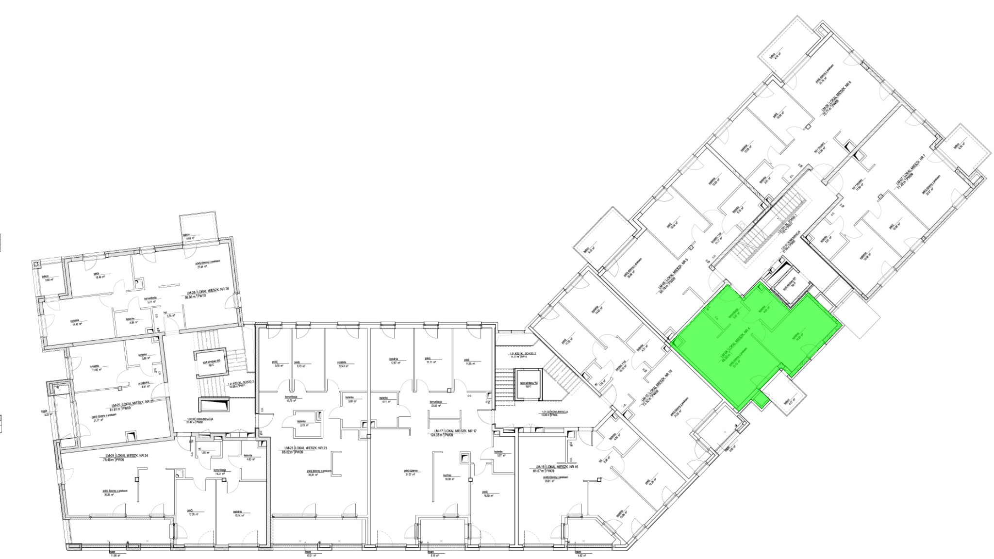
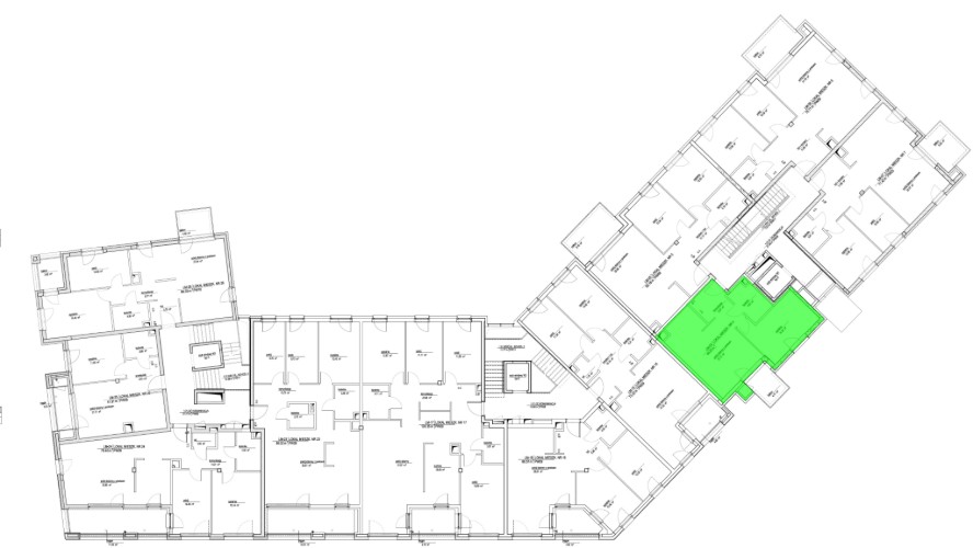
Budynek Szumu Drzew i Kwiatu Paproci K33-1
Powierzchnia 48,93 m2
Piętro 1 (Piętro I)
Pokoje 2
Całkowita cena brutto
1 174 300 PLN