cena Mieszkania

1 198 700 PLN

cena za metr kw.

24 498 PLN

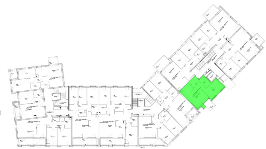
Budynek Szumu Drzew i Kwiatu Paproci K33-1
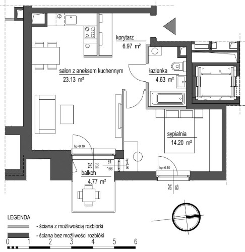
Powierzchnia 48,93 m2
Piętro 2 (Piętro II)
Pokoje 2
Całkowita cena brutto
1 198 700 PLN