cena Mieszkania

1 601 700 PLN

cena za metr kw.

23 499 PLN

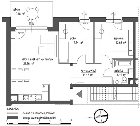
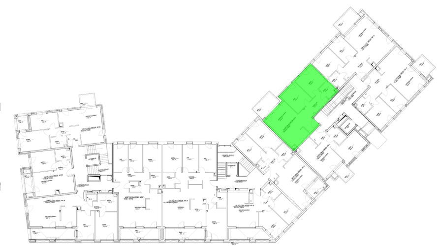
Budynek Szumu Drzew i Kwiatu Paproci K33-1
Powierzchnia 68,16 m2
Piętro 2 (Piętro II)
Pokoje 3
Całkowita cena brutto
1 601 700 PLN