cena Mieszkania

1 413 500 PLN

cena za metr kw.

25 000 PLN

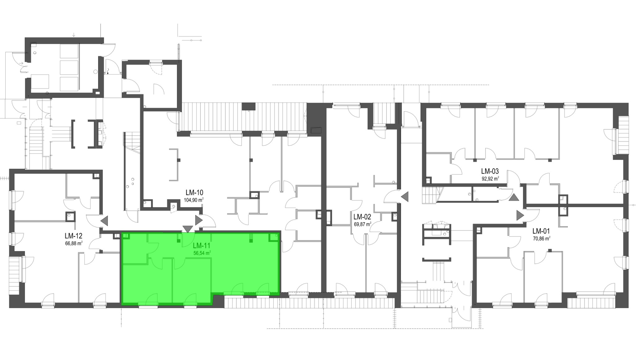
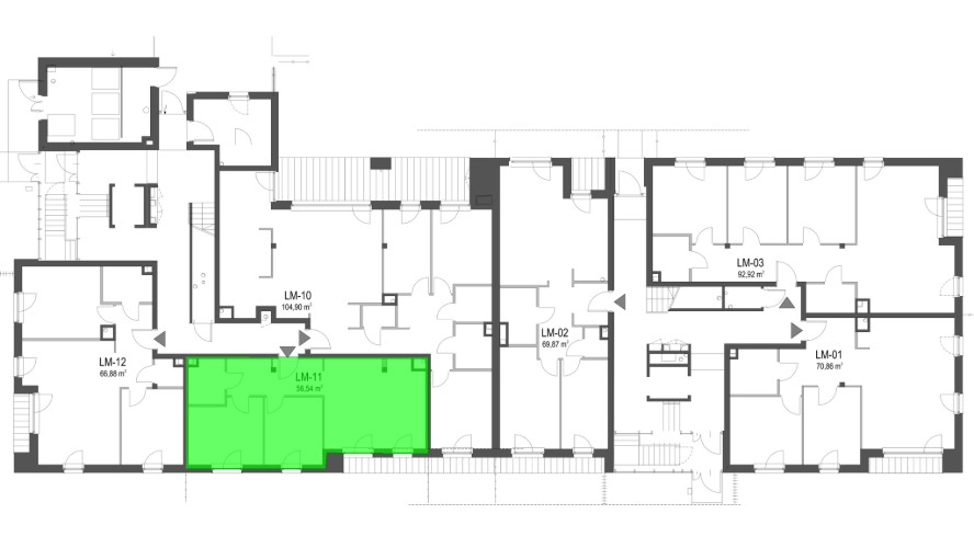
Budynek Szumu Drzew i Kwiatu Paproci K33-2
Powierzchnia 56,54 m2
Piętro 0 (Parter)
Pokoje 3
Całkowita cena brutto
1 413 500 PLN
Popup zamykający
Zamknij

Zostaw do siebie kontakt

Oświadczam, że zapoznałem się z polityką prywatności