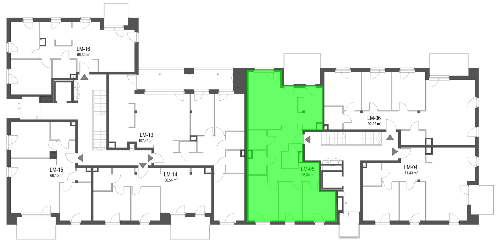
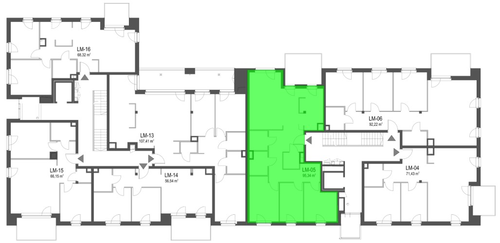
cena Mieszkania

2 097 480 PLN

cena za metr kw.

22 000 PLN

Budynek Szumu Drzew i Kwiatu Paproci K33-2
Powierzchnia 95,34 m2
Piętro 1 (Piętro I)
Pokoje 4
Całkowita cena brutto
2 097 480 PLN
Popup zamykający
Zamknij

Zostaw do siebie kontakt

Oświadczam, że zapoznałem się z polityką prywatności