cena Mieszkania

1 881 220 PLN

cena za metr kw.

22 000 PLN

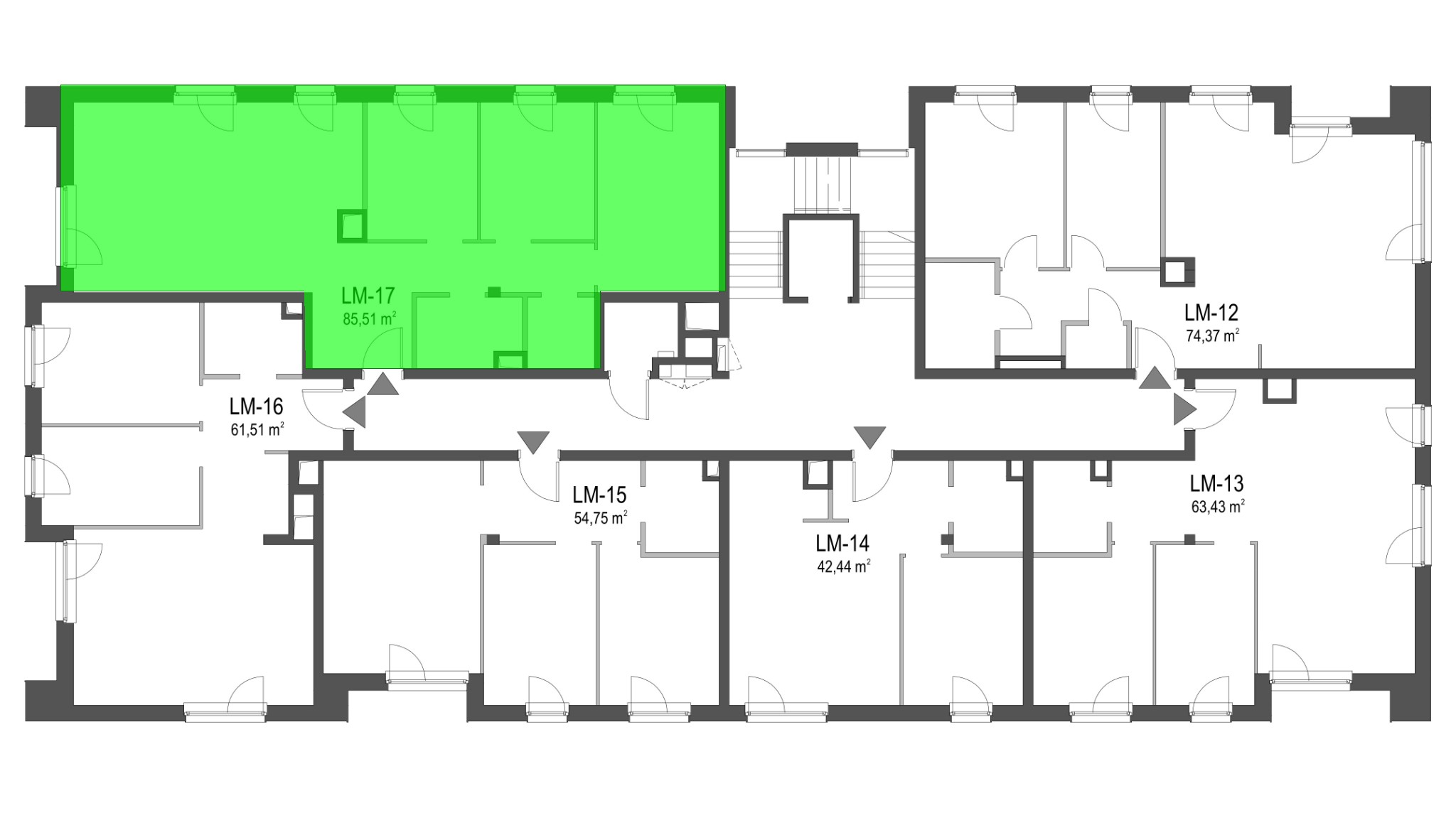
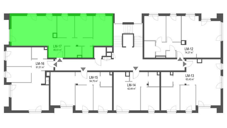
Budynek Szumu Drzew i Kwiatu Paproci K33-3
Powierzchnia 85,51 m2
Piętro 2 (Piętro II)
Pokoje 4
Całkowita cena brutto
1 881 220 PLN
Popup zamykający
Zamknij

Zostaw do siebie kontakt

Oświadczam, że zapoznałem się z polityką prywatności