cena Mieszkania

1 636 140 PLN

cena za metr kw.

22 000 PLN

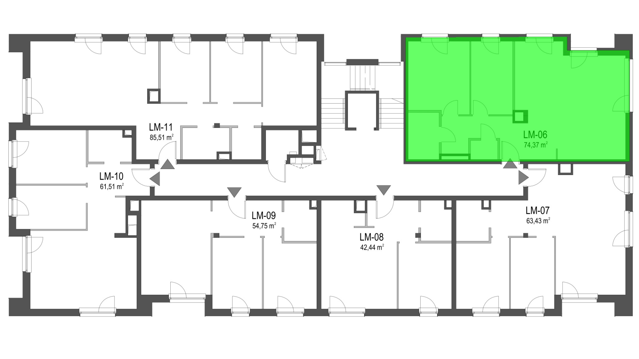
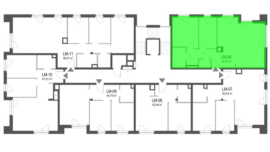
Budynek Szumu Drzew i Kwiatu Paproci K33-3
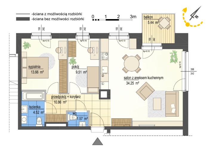
Powierzchnia 74,37 m2
Piętro 1 (Piętro I)
Pokoje 3
Całkowita cena brutto
1 636 140 PLN
Popup zamykający
Zamknij

Zostaw do siebie kontakt

Oświadczam, że zapoznałem się z polityką prywatności