cena Mieszkania

2 466 360 PLN

cena za metr kw.

25 500 PLN

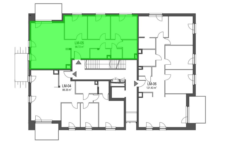
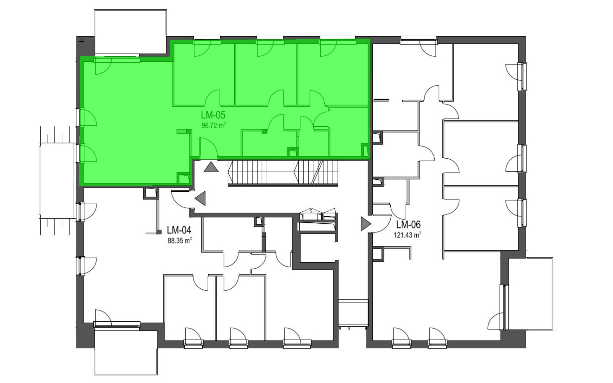
Budynek Szumu Drzew i Kwiatu Paproci WM1
Powierzchnia 96,72 m2
Piętro 1 (Piętro I)
Pokoje 4
Całkowita cena brutto
2 466 360 PLN
Popup zamykający
Zamknij

Zostaw do siebie kontakt

Oświadczam, że zapoznałem się z polityką prywatności