cena Mieszkania

3 035 750 PLN

cena za metr kw.

25 000 PLN

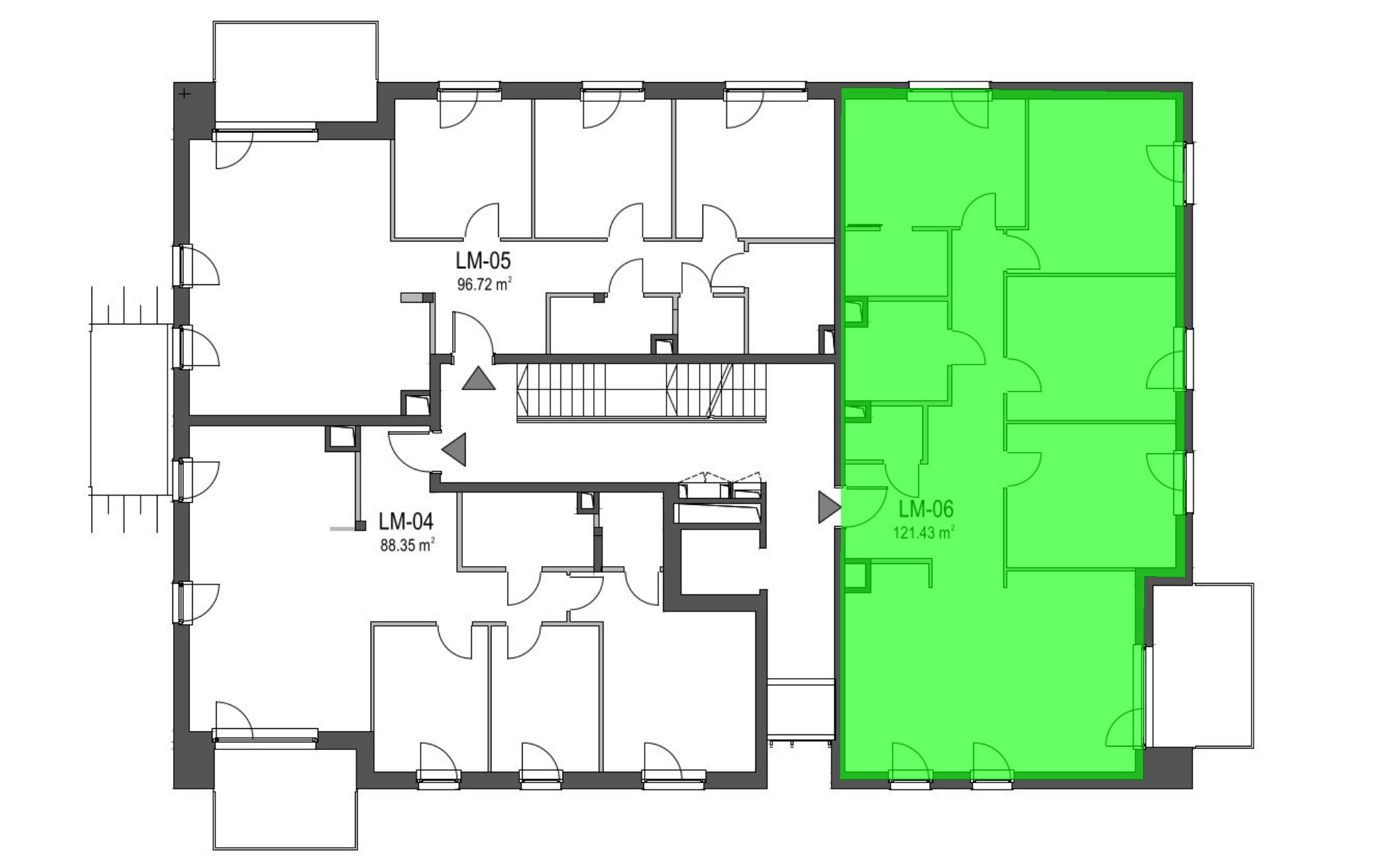
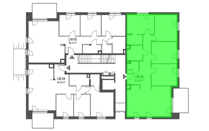
Budynek Szumu Drzew i Kwiatu Paproci WM1
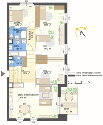
Powierzchnia 121,43 m2
Piętro 1 (Piętro I)
Pokoje 5
Całkowita cena brutto
3 035 750 PLN
Popup zamykający
Zamknij

Zostaw do siebie kontakt

Oświadczam, że zapoznałem się z polityką prywatności