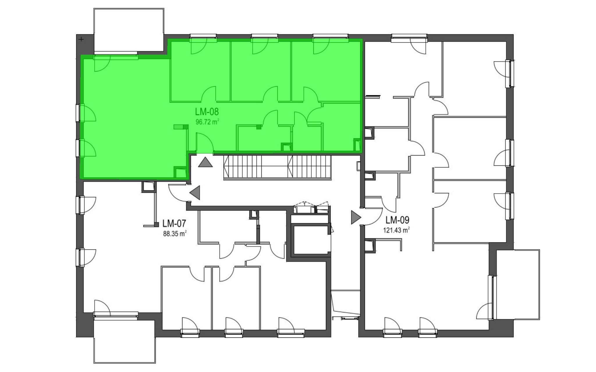
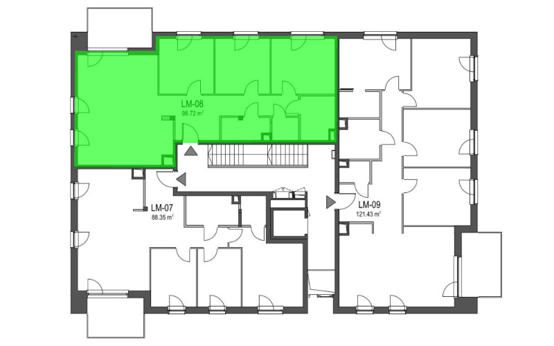
cena Mieszkania

2 514 720 PLN

cena za metr kw.

26 000 PLN

Budynek Szumu Drzew i Kwiatu Paproci WM1
Powierzchnia 96,72 m2
Piętro 2 (Piętro II)
Pokoje 4
Całkowita cena brutto
2 514 720 PLN
Popup zamykający
Zamknij

Zostaw do siebie kontakt

Oświadczam, że zapoznałem się z polityką prywatności